Call Us: +1.305.643.4771
Follow Us:

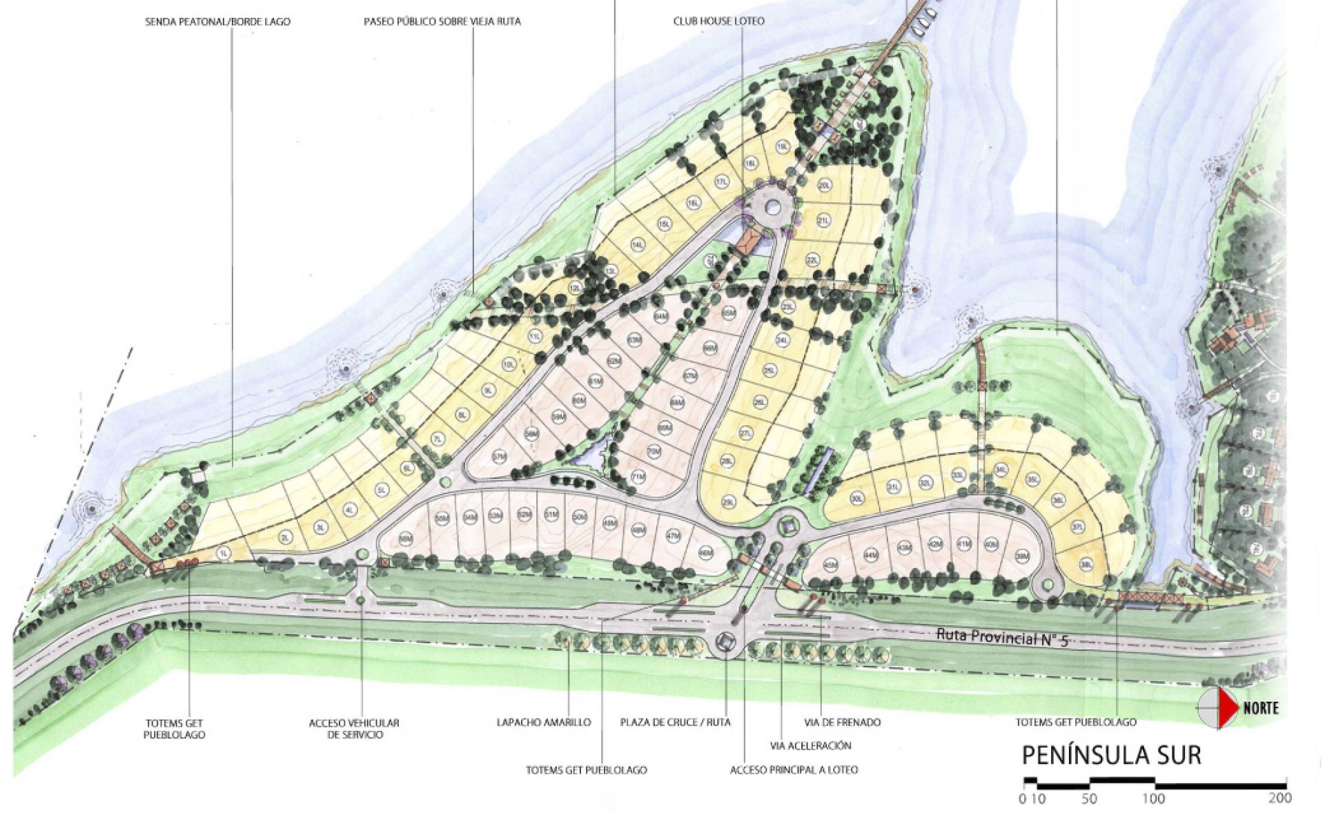
Movento Pueblo Lago

Los Molinos Lake, Cordoba, Argentina

Description

This New Urbanism Project is comprised of 95 residential lots, a luxury hotel ans 48 vilas units. The complex features a lakeside walkway that allows pedestrians to enjoy not only the lake views but also the eucalyptus and pine trees that fill the land.

Details

Title: Movento Pueblo Lago
Client: ITG s.a.
Size: 47 acres
Category: Master-Planning

Video

Want to talk to us? Feel free

RAD Miami Office
  • Address: 117 N.W. 42nd Ave., Suite - CU #3
    (LeJeune Road) Miami, FL, 33126
  • Phone: +1 305-643-4771
  • Email: info@radmiami.com
  • Monday - Friday: 9:00 am - 6:00 pm (GMT -4)
    Saturday - Sunday: Closed
RAD Córdoba Office
  • Address: Achaval Rodriguez 70 1°A
    Nueva Córdoba, Córdoba, Argentina 5000
  • Phone: +54 351-423-1355
  • Email: info@radmiami.com
  • Monday - Friday: 9:00 am - 6:00 pm (GMT -3)
    Saturday - Sunday: Closed
Contact Us
© 2014. «RAD Architecture». All right reserved. Powered by Concepto Sur